Bytový dům

ZKOLAUDOVÁNO - volné byty k pronájmu

Nabízíme k pronájmu nově postavené byty v třípodlažním bytovém domě v Nádražní ulici, 10 minut od centra České Kamenice s výhledem na město a severní dominantu Jehlu.

O projektu

Průčelí

V roce 2024 bude dokončeno 13 bytů v třípodlažním domě s revitalizovaným základem prvního nadzemního podlaží a v letech 2023 a 2024 nově dostaveným druhým a třetím podlažím. Byty jsou v dispozicích od 1+KK, 2+KK s lodžií po mezonety 3+KK s terasou v nejvyšším patře a mají bytovou plochu od 28 do 85 m2.

V přízemí objektu je bezbariérový byt 1+KK s obytnou plochou 47 m2 a vlastním bezbariérovým vstupem.

Ke všem bytům je venkovní parkovací stání a sklepní kóje. Celý objekt je zateplený s ekologickým a nezávislým vytápěním.

Zadní strana

“Jako Českokamenický resident chci místním i novým obyvatelům nabídnout atraktivní, moderní a kvalitní bydlení v pestré škále bytových dispozic a ploch, aby si každý mohl vybrat a vytvořit si příjemný domov v České Kamenici,” říká Ing. Jaroslav Leska, zástupce investora a pronajímatele bytů.

Nabídka bytů

Č. bytu Patro Dispozice Půdorys Velikost m2 Parkování Terasa Lodžie Poznámka Dostupnost
1 1. NP 2+KK Zobrazit 47 ANO NE NE REZERVOVANÝ
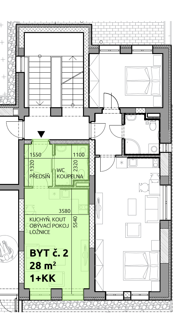
2 1. NP 1+KK Zobrazit 28 ANO NE NE VOLNÝ
3 1. NP 1+KK Zobrazit 31 ANO NE NE VOLNÝ
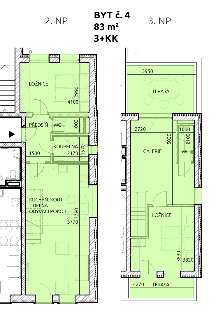
4 2. a 3. NP 3+KK Zobrazit 83 ANO 11 m2 NE mezonet REZERVOVANÝ
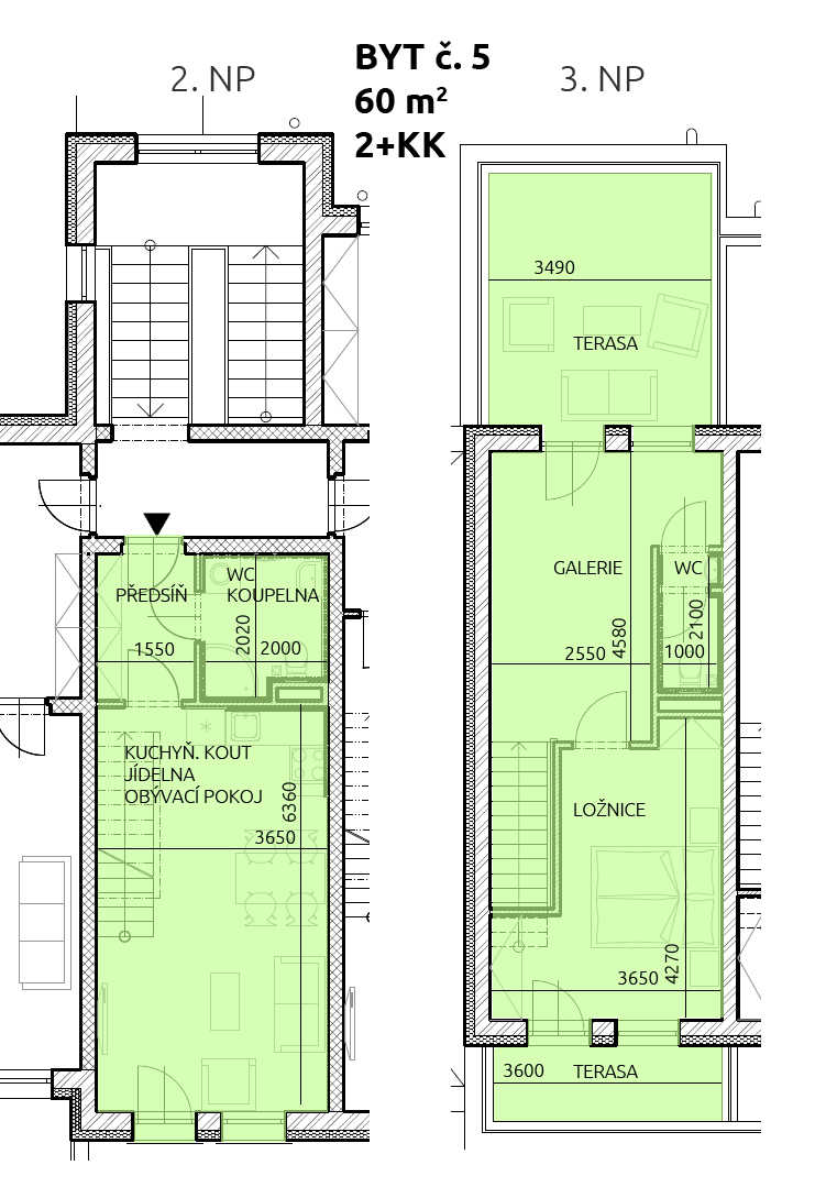
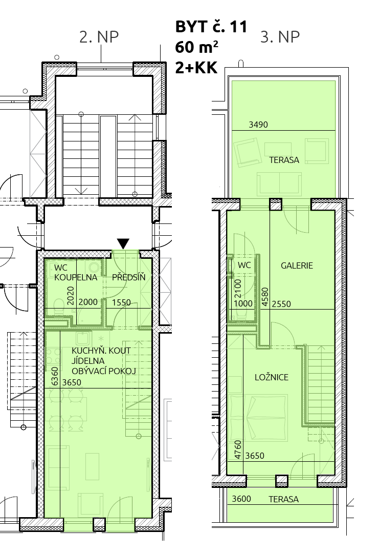
5 2. a 3. NP 2+KK Zobrazit 60 ANO 13,5 m2 NE mezonet REZERVOVANÝ
6 2. NP 3+KK Zobrazit 83 ANO NE ANO REZERVOVANÝ
7 1. NP 3+KK Zobrazit 78 ANO NE NE REZERVOVANÝ
8 1. NP 1+KK Zobrazit 28 ANO NE NE   VOLNÝ
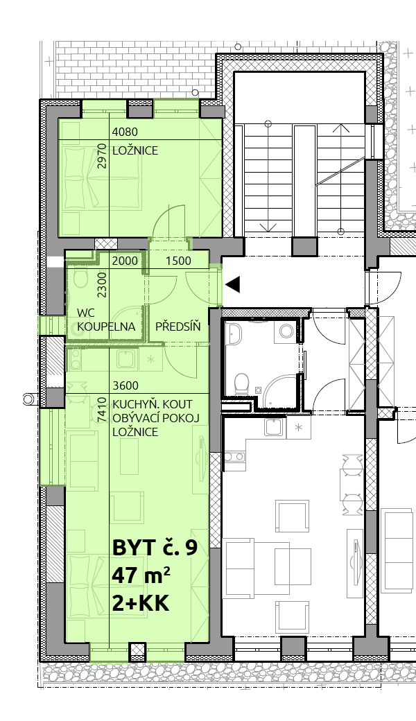
9 1. NP 2+KK Zobrazit 47 ANO NE NE REZERVOVANÝ
10 2. NP 3+KK Zobrazit 83 ANO NE ANO VOLNÝ
11 2. a 3. NP 2+KK Zobrazit 60 ANO 13,5 m2 NE mezonet REZERVOVANÝ
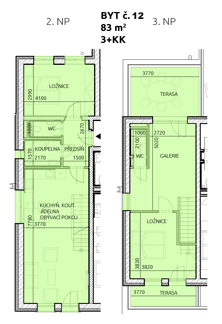
12 2. a 3. NP 3+KK Zobrazit 83 ANO 11 m2 NE mezonet REZERVOVANÝ
13 1. NP 1+KK Zobrazit 47 ANO NE NE bezbariérový byt REZERVOVANÝ

Lokalita

Historické město Česká Kamenice leží 20 minut autem od Děčína v krásné přírodě na rozhraní tří CHKO: Lužické hory, Labské pískovce a České středohoří. Blízký Národní park České Švýcarsko je významnou přírodní i turistickou destinací. Budova s byty se nachází cca 10 minut chůze od centra města.

Občanská vybavenost

Veškerá občanská vybavenost je “na dosah ruky”: mateřská, základní i umělecká škola, gymnázium, zdravotní středisko a dva supermarkety i několik restaurací. Lze si užít koupaliště, sportovní halu nebo si vyjít do parku či na zříceninu hradu Kamenice na Zámeckém vrchu.

Dopravní dostupnost

Samozřejmostí je výborná dopravní obslužnost vlakem i autobusem. Dojezdové vzdálenosti autem do okolních větších měst jsou také příznivé: 20 minut do Děčína, 25 minut do České Lípy, 30 minut do Varnsdorfu, 40 minut do krajského města Ústí n. Labem, 60 minut do krajského města Liberce. Do německého lázeňského města Bad Schandau dojedete za 40 minut.

Kontakt

Telefon: 603235997 | 603522958
Investor a pronajímatel
Activity Communication s. r. o.
Kaštanová 1303/5, 40501 Děčín
IČ: 25048996
Telefon: 603235997 QR kód telefonu